加入收藏
设为首页
联系我们
网站首页
公司简介
公司荣誉
新闻中心
产品展示
防爆常识
销售网络
联系我们
留言反馈
电子邮局
产品导航
防爆空调器
在线分析柜小屋专用防爆空调器
坑道(地下工程)专用防爆除湿机
恒温恒湿防爆空调器
海洋平台专用防爆空调器
粉尘环境专用防爆空调器
防爆末端设备
防爆冷库专用空调(冷风机)
控制箱
防爆附件
防爆风机
联系方式
地址:江苏省启东市滨江大道1号
电话:0513-83110489
传真:0513-83316019
网址:www.qdjldq.com
邮编:226600
邮箱:E-mail:qdjl@qdjldq.com
防爆末端设备
Qidong Jiule Electric
BG系列防爆柜式风机盘管机组
当前为第 7 页 共9页
1
2
3
4
5
6
7
8
9
BGBW系列卧式防爆变风量机组
BGBW系列卧式防爆变风量机组(续)
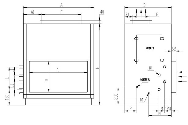
BG系列立式机组(含BGL、BGXL、BGBL)外形尺寸
前回前送直接送风型(BG(X)L1.0~BG(X)L3.0)
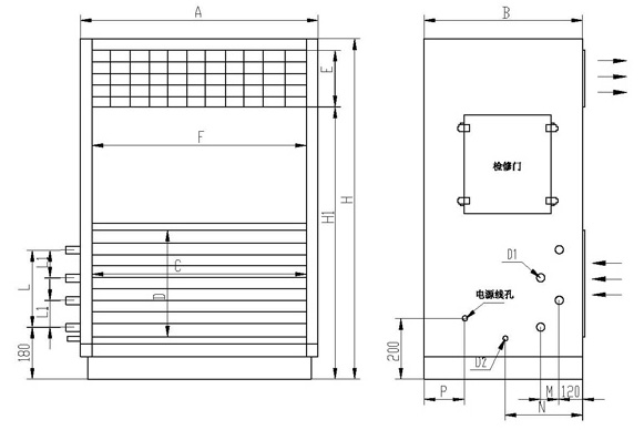
上送风型
<<
上一页
>>
下一页
启东久乐电气成套有限公司 电话:0513-83110489 83329596 83328426 传真:0513-83316019
地址:江苏省启东市滨江大道1号 网址:www.qdjldq.com E-mail:qdjl@qdjldq.com